暮らしの中で趣味を楽しむ、こだわりの詰まった空間
お客様より、ホテルライクな空間で趣味を楽しみたいとご要望をいただきました。
趣味の映画や音楽を楽しんでいただけるよう、設備や素材を厳選してご提案いたしました。
デザイン性が高く、音が伝わりにくいエコカラットでご近所を気にすることなく存分に音楽を流すことができます。
またマンションでもキッチンやリビングなど、どの部屋も広々と使えるように暮らしやすさを考えた間取り変更を行いました。
施工事例データ
| 地域 | 仙台市青葉区 |
|---|---|
| 施工内容 | マンション全面改修リノベーション |
| 施工費用 | 約600万円 |
| 工期 | 約1か月 |
| 使用商材・建材 | ・キッチン:TOTO/ザ・クラッソ ペニンシュラ型 ・浴室:TOTO/マンションリモデルWYシリーズ 1218サイズ ・洗面化粧台:Panasonic/シーライン ワイドカウンタータイプ ・トイレ:TOTO/GG1-800 ・その他:エコカラットなど |
お客様からのご要望
映画鑑賞や音楽が趣味なので、暮らしの中でも楽しみたいと考えています。
また、キッチンなど広くしてマンションでも使い勝手のいい空間にしていただきたいです。
サンダイのリノベからのご提案
マンションという施工の制約があるなかでもご希望を叶えることができるよう、使いやすく趣味も楽しめる空間をご提案いたしました。
美観と防音を兼ね備える内装材のエコカラットを採用したことで、隣との距離が近いマンションでも音漏れを防止できます。
また、デザイン性の高い内観を希望されていたので、家具の位置も想定したレイアウトにいたしました。
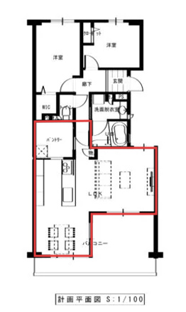
間取り図
お客様のご要望に合わせて、特にキッチン周りの間取り変更を行いました。
他にも、パントリースペースを設けることで生活空間を隠し、すっきりした仕上がりになるよう設計しております。
施工後
ダイニング・リビング・キッチン
リビングは、ホテルライクな雰囲気で趣味を楽しめように、
デザイン性が高く、音が伝わりにくいエコカラットを使用した内装にいたしました。
また間取りも工夫し、キッチンの裏にパントリースペースを設けたことですっきりした空間になりました。
浴室・洗面化粧台・トイレ
水まわりは機能性や収納力、デザイン性の優れた製品を選択し、毎日の暮らしやすさを実現しました。
担当したスタッフよりメッセージ
ご要望に沿って、キッチンとテレビの後ろにエコカラットを配置しホテルライクな住まいになるようにいたしました。
間接照明を多く使用したレイアウトなど、お客様にとても喜んでいただき、満足のいく仕上がりになりました。



